Excited!!!!.....?
Design or Impact - What excites you more?
Every project has been shaped with elegance, precision, and creativity, reflecting a balance of design innovation and technical expertise. Through seamless teamwork and collaboration, ideas were transformed into reality, ensuring efficiency, accuracy, and lasting value. Each BIM project showcases not only advanced modelling but also the spirit of collective excellence.

software skills
From Model to Reality — Powered by Technology
I utilise industry-leading software tools to deliver coordinated, data-driven, and construction-ready designs. My BIM workflow is primarily developed using Autodesk Revit for 3D modelling, documentation, and parametric family creation, supported by Navisworks for clash detection and multidisciplinary coordination.
For architectural detailing and drafting, I work with AutoCAD, ensuring accuracy in technical drawings and documentation.
In design visualisation and presentation, I use SketchUp, Enscape / Lumion, enabling realistic renderings and client-ready outputs.
My workflow integrates modelling, coordination, quantity extraction, and documentation to ensure seamless collaboration between architects, engineers, and site teams.
Residential Projects
Elevations Designed to Inspire and Endure
In my projects, exterior elevation designing is approached with a focus on elegance and function. Materials, textures, and proportions are carefully balanced to create harmony. Each façade is crafted to reflect identity and purpose, while innovative detailing ensures durability, aesthetic appeal, and a timeless impression in every design.














Institutional Building
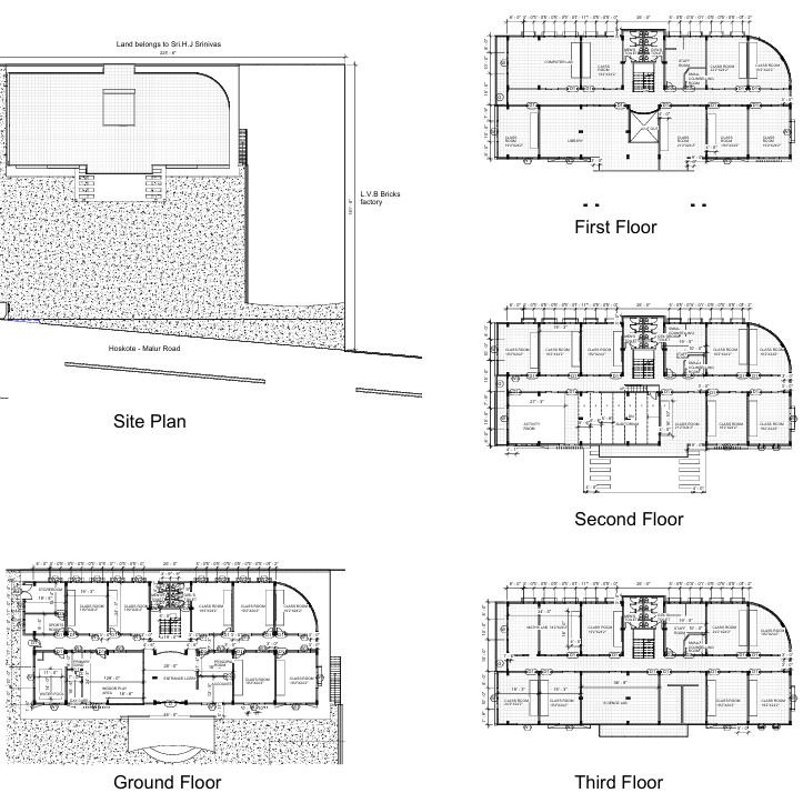
Pinnacle International School
I designed Pinnacle International School using Revit, focusing on structure, architecture, and MEP integration. The architectural concept balanced elegance with functionality, shaping inspiring spaces for learning. Structural design ensured safety and durability, while MEP systems were modeled for efficiency, comfort, and sustainability. Revit enabled precise coordination across all disciplines, minimizing clashes and enhancing detailing. Every aspect was harmonized to achieve both aesthetics and performance, showcasing my ability to deliver innovative, practical, and well-coordinated solutions for a modern educational environment.





Institutional Building
Atharva International School
Designing Atharva International School was centered on close client coordination and understanding their vision. Every detail was developed with transparency and collaboration, ensuring the design reflected their needs and aspirations. Client satisfaction was prioritized at every stage, resulting in a functional, elegant, and purpose-driven educational environment.


Building Information Modelling
Coordinating Complexity. Delivering Clarity
In my BIM practice, I integrate architectural design intent with structural and construction practicality. I develop intelligent parametric models that enable precise coordination, accurate quantity extraction, and efficient construction sequencing. My workflow ensures reduced rework on site and improved stakeholder collaboration throughout project lifecycle
The Heritage Center




Retail Building

Commercial Complex


Government Hospitals

Documentation

Furniture modelling
Turning Design Ideas into Digital Reality
I specialise in digital furniture modelling, creating highly accurate 3D models that seamlessly translate design concepts into buildable solutions. Using parametric and BIM-based workflows, I design furniture with full attention to dimensions, materials, joinery, and functionality, ensuring models are ready for visualization, fabrication, and installation. My approach bridges creativity and technical precision, allowing designers, engineers, and manufacturers to collaborate efficiently and deliver interiors that are both aesthetically appealing and constructible.






Interior Designing
Engineering Elegance into Every Space
I design interiors that merge creativity with constructability. Every space I create is driven by proportion, material harmony, spatial flow, and functional efficiency. With strong BIM integration and digital modelling expertise, I ensure design concepts transition smoothly from visualization to on-site execution, minimising revisions and maximising impact.
Flex Lab - 1
Redesign for better acoustics
This project aims to enhance the acoustic environment of the Flex Lab by redesigning the ceiling with coconut fiber-infused panels. The goal is to reduce reverberation and improve sound absorption, creating a more comfortable and functional space for collaborative activities



Overall, the design of a multipurpose acoustical ceiling made from coconut fibers for a 3D printing lab necessitates a comprehensive approach that balances acoustic performance, sustainability, functionality, adaptability, and safety considera tions to create a solution that enhances the work ing environment while minimizing environmental impact.

Careful consideration given to furniture layout and acoustic zoning. The floor plans will incorporate strategic placement of acoustic panels, furniture, and partitions to optimize sound absorption and minimize reverberation. Flexible seating arrangements will allow for versatile use of the space, accommodating different group sizes and activities. Additionally, designated quiet zones and collaborative areas will be integrated to cater to various work styles. The floor plans aim to create a balanced acoustic environment that enhances communication, productivity, and user experience within the redesigned Flex Lab.

Installation Design at Waverly Station - Edinburgh
Take It Eazyyyy... A space which catches the eye. Encourages travelers passing through to wander, relax and reconnect with themselves.

Exhibitional Area-The space is combination of history and waiting serves the dual purpose of educating and engaging visitors while enhancing their experience during wait times.-It caters to the curiosity of tourists eager to learn about the place's history and provides a convenient and enriching waiting area for locals.
Interactive Space-The space acts as an interactive area with a panel and the user themselves getting an emotional connection to the city by sharing their memories with it.
Photo Display Area- This depicts the history of the station and the events and the advertisements in and around the city readily available for the users.

Jellyfish spits bubbles from its mouth to move, taking it easy even though getting washed away by the waves and glowing beautifully in the dark. This serves as a gentle reminder that sometimes in our fast paced lives, we need moments of calm and tranquility to relax and engage with the installation.
Redesign of Library at Heriot Watt University - Galashiels
The library at Heriot-Watt University’s Scottish Borders Campus in Galashiels underwent a comprehensive redesign and refurbishment to transform it into a modern, flexible, and student-centric learning environment. The project revitalised the existing facility, enhancing spatial layout, comfort, and functionality to better support both individual and collaborative study. The redesign focused on improving circulation, study zones, and access to resources while integrating updated fixtures, fittings, and technology to create a more engaging academic space. Special attention was given to upgrading interior finishes and services to elevate user experience and reflect contemporary educational needs. The redesigned library now offers a welcoming and adaptable environment that fosters productivity, interaction, and academic success for students and staff alike.


